墨田区・台東区・江東区の不動産|株式会社ChapteR > 株式会社ChapteRの物件一覧 > 台東区今戸1丁目の戸建 > 物件詳細
◇◆南向きにつき陽当たり良好です◆◇
空室につきいつでも内覧可能です。お気軽にお問合せください。
◆お問い合わせはChapteRまで◆
現地見学会

| 所在地 | 東京都台東区今戸1丁目 | ||
|---|---|---|---|
| 交通 | |||
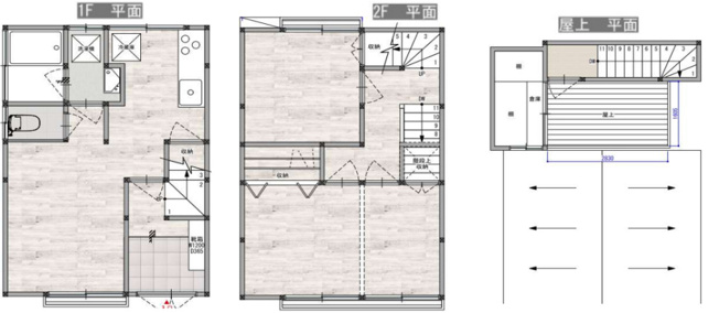
| 間取り/詳細 |
3LDK/ LDK 1室/洋室 3室 |
建物面積(坪数) | 60.56㎡(18.31坪) |
| 価格 | 3,280万円 | ||
| 駐車場/月額料金 | 無/- | ||
| 土地の敷金/保証金 | -/- | 借地料/借地期間 | -/- |
| 土地権利 | 所有権 | 土地面積(坪数) | 36.19㎡(10.94坪) |
| 傾斜地部分面積 | - | 路地状敷地 | - |
| 私道負担面積/セットバック | -/- | 高圧線下面積 | - |
| 地目/地勢 | 宅地/平坦 | 接道状況 | 一方(南) |
| 建ぺい率/容積率 | 80%/400% | 用途地域 | 近隣商業 |
| 都市計画 | 市街化区域 | 種別/構造 | 中古一戸建/木造 |
| 階建 | 2階建 | 築年月(築年数) | 1111年 1月 (築915年) |
| 総区画数/販売区画数 | 1区画/1区画 | 向き | 南 |
| 現況 | 空家 | その他の法令上の制限 | - |
| 取引態様/引渡時期 | 仲介/即時 | 建築確認番号 | - |
| 物件番号 | 95279497 | 取引条件の有効期限 | 2025年12月13日 |
| リフォーム |
2025年6月 キッチン 浴室 トイレ 壁 床 全室 外壁サイディング 1面 、外壁防水塗装 1部分、インフラ配管 新規交換、洗濯機パン新規取付、給湯器新規、独立洗面化粧台新規交換、建具全箇所新規交換 等 2025年6月 外壁 |
||
| 設備条件 |
|
||
| 備考 |
例えばお仕事の合間等、お客様のご都合に合わせて柔軟に対応可能です。物件見学のご希望や、ローン相談、ライフプランシミュレーション、その他些細なことでも気になることがあればお気軽にご連絡ください。 ~~お気軽にご案内やご来店できるポイント~~ 1.キッズスペースあり お子様にはおもちゃ、絵本、DVDなどご用意をしていますので、お子様連れでもお気軽にご来店ください。 2.ご条件に近い物件も合わせてご紹介をさせていただきます。 近隣物件やご希望に合わせてその他の物件もご用意をさせていただきます。 3.ご連絡の方法は、お客様のご希望に合わせてSMSやLINEでのやり取り等ご都合の良い方法で対応します。 墨田区・台東区・江東区の不動産売買は弊社にお任せください! |
||
| 設備(その他) | 公営水道、公共下水、都市ガス、東京電力 | ||
| 取扱会社 |
|
||
| QRコード |
このQRコードを読み取ることで、スマホでも物件情報を確認できます。 |
||
※地図上に表示される物件の位置は付近住所に所在することを表すものであり、実際の物件所在地とは異なる場合がございます。
台東区今戸1丁目の戸建に関するこだわり条件から探す