墨田区押上1丁目の古家付売地
物件情報
周辺施設
墨田区押上1丁目の古家付売地 の物件概要
【借地権】| 所在地 | 東京都墨田区押上1丁目 | ||
|---|---|---|---|
| 交通 | |||
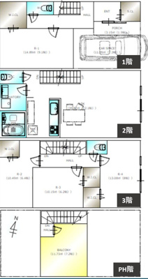
| 価格 | 6,980万円~1億3,960万円 | 総区画数 | 2区画 |
| 土地面積 | 65.07㎡~130.14㎡ | 開発面積 | - |
| 坪数 | 19.68坪~39.36坪 | 坪単価 | 354.67万円 |
| 種別 | 借地権 | 地目/地勢 | 宅地 /平坦 |
| 備考 | 台東区、墨田区、江東区の不動産売却・不動産購入はお任せください!地域密着だからこそ豊富な未公開物件情報と、エリアに精通した地域情報を以て全力でサポートさせていただきます。 ~~弊社独自のサポートメニューのご紹介~~ 第三者FPによるライフプランシミュレーションを用いた無理のない資金計画のご提案、近隣聞き込み調査や災害リスク調査等を中心とした独自の物件調査など、不動産購入してからのその先のお客様の未来を見据えて、安全に不動産購入できるようお客様のあらゆる不安をクリアにしていきます。 |
||
| 取扱会社 |
|
||
※地図上に表示される物件の位置は付近住所に所在することを表すものであり、実際の物件所在地とは異なる場合がございます。
墨田区押上1丁目の古家付売地の販売区画情報





