葛飾区西水元2丁目の新築戸建

3,890万円

東京都葛飾区西水元2丁目

常磐緩行線「亀有」駅徒歩36分

千代田線「北綾瀬」駅徒歩34分

常磐緩行線「金町」駅徒歩37分

価格
3,890万円
間取り/建物面積
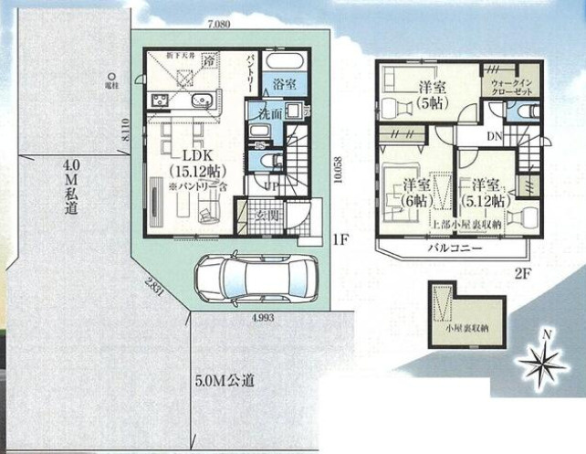
3LDK/76.79㎡
所在地
東京都葛飾区西水元2丁目
築年
2026年2月(予定)
駐車
-
交通

常磐緩行線亀有」駅 徒歩36分

千代田線北綾瀬」駅 徒歩34分

常磐緩行線金町」駅 徒歩37分

葛飾区西水元2丁目の新築戸建の基本情報

物件名
葛飾区西水元2丁目の新築戸建
価格
3,890万円
建物面積
76.79㎡
土地面積
20.88坪(69.04㎡)
築年月
2026年2月(予定)
総戸数
1戸
所在地
東京都葛飾区西水元2丁目
交通

常磐緩行線亀有」駅 徒歩36分

千代田線北綾瀬」駅 徒歩34分

常磐緩行線金町」駅 徒歩37分

葛飾区西水元2丁目の新築戸建の詳細情報

設備条件
設備(その他)
    公営水道、公共下水、都市ガス、東京電力
駐車場/月額
-/-
土地権利
所有権
国土法届出
不要
用途地域
第二種低層住居専用
取引態様
仲介
引渡し
相談
備考
台東区、墨田区、江東区の不動産売却・不動産購入はお任せください!地域密着だからこそ豊富な未公開物件情報と、エリアに精通した地域情報を以て全力でサポートさせていただきます。

~~弊社独自のサポートメニューのご紹介~~
第三者FPによるライフプランシミュレーションを用いた無理のない資金計画のご提案、近隣聞き込み調査や災害リスク調査等を中心とした独自の物件調査など、不動産購入してからのその先のお客様の未来を見据えて、安全に不動産購入できるようお客様のあらゆる不安をクリアにしていきます。

葛飾区西水元2丁目の新築戸建で募集中の物件

  1. 23.22坪 (76.79㎡)

    3,890万円(186.3万円/坪)

周辺施設

  • 幸田小学校の画像

    小学校

    幸田小学校

    699m(9分)

  • 葛美中学校の画像

    中学校

    葛美中学校

    733m(10分)

  • 飯塚小学校の画像

    小学校

    飯塚小学校

    1312m(17分)

  • 中川東小学校の画像

    小学校

    中川東小学校

    1757m(22分)

近隣の物件

  1. 葛飾区東金町4丁目

    3SLDK (117.42㎡)

    6,499万円

  2. 葛飾区東水元2丁目

    4LDK (82.46㎡)

    4,680万円

  3. 葛飾区新宿1丁目

    2SLDK (114.06㎡)

    6,650万円

  4. 葛飾区奥戸4丁目

    3LDK (91.12㎡)

    5,980万円

よく見られている物件

  1. 葛飾区青戸6丁目

    3LDK (95.64㎡)

    6,600万円

  2. 葛飾区青戸6丁目

    5LDK (127.47㎡)

    7,700万円

  3. 墨田区東向島1丁目

    2LDK+S(納戸) (70.14㎡)

    5,680万円

  4. 台東区竜泉3丁目

    1LDK+S(納戸) (87.52㎡)

    5,980万円

葛飾区西水元2丁目の新築戸建

お気軽にお問い合わせください

無料お問い合わせ

株式会社ChapteR

0362404290

10:00~20:00

(休:年末年始)